
Фильтр ФГГ-350
цена от
605 700 руб.
- Исполнение – горизонтальное
- Номинальный диаметр DN – 350 мм
- Номинальное давление PN – до 10,0 МПа
- Тонкость фильтрации – 4, 8, 12, 16 или 25 мм
- Максимальная производительность – 600 м³/ч
- Материал корпуса – 09Г2С / 12Х18Н10Т / другая сталь
- Блочное исполнение – опционально
- Теплоизоляция – опционально
- Комплектация КИП, ЗРА – опционально
- Резервные фильтрующие элементы – опционально
Фильтр-грязеуловитель ФГГ-350 с номинальным диаметром DN 350 и пропускной способностью 600 м³/ч предназначен для очистки нефтепродуктов на промышленных предприятиях и магистральных трубопроводах средней мощности. Модель эффективно удаляет частицы размером до 4 мм, защищая технологическое оборудование от износа и коррозии. Благодаря внутреннему диаметру корпуса 700 мм, ФГГ-350 подходит для работы с вязкими средами, такими как мазут или тяжелые нефтепродукты.

Примеры применения
- Нефтеперерабатывающие заводы: Фильтрация сырой нефти перед подачей в атмосферно-вакуумные колонны.
- Теплоэлектростанции: Очистка мазута для горелок, работающих в условиях повышенных температур.
- Химические комплексы: Защита реакторов от попадания металлической стружки и песка.
Особенности ФГГ-350
- Усиленная осадочная камера: Накопление до 50% загрязнений до попадания на фильтрующие элементы, что снижает частоту обслуживания.
- Адаптация к высоким давлениям: Рабочее давление до 10 МПа позволяет использовать фильтр на участках с перепадами давления.
- Термостойкость: Корпус из низколегированной стали марки 09Г2С выдерживает температуры от -20°C до +80°C.
- Быстросъемные элементы: Замена кассет занимает не более 1 часа благодаря боковому люку с ручным затвором.
Технические параметры фильтра для нефти ФГГ-350
Обозначение | Фильтр ФГГ-350 |
Производительность, м³/ч | 600 |
Условное давление, Pу, МПа | 1,6; 2,5; 4,0; 6,3; 8,0 или 10,0 |
Температура нефти, ℃ | От -15 до +80 |
Температура нефтепродуктов, ℃ | От -20 до +80 |
Степень фильтрации, мм | 4, 8, 12, 16 или 25 |
DN, мм | 350 |
Dp, мм (внутренний диаметр корпуса) | 700 |
L, мм (расстояние от фланца корпуса до кромки осевого патрубка) | 4200 |
L1, мм (расстояние от оси бокового патрубка) | 1500 |
H, мм (расстояние от оси ФГГ до опоры) | 1000 |
L2, мм (расстояние между опорами) | 2100 |
L3, мм (расстояние до опоры) | 1200 |
Обозначение | Блочный фильтр ФГГ-350 |
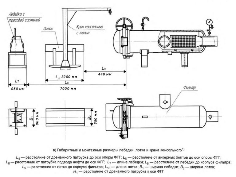
L7, мм (длина лебедки) | 950 |
L8, мм (расстояние от лебедки до корпуса фильтра) | 7000 |
L9, мм (расстояние от лотка до корпуса фильтра) | 440 |
L10, мм (длина лотка) | 3200 |
В2, мм (ширина лотка) | 650 |
В1, мм (ширина лебедки) | 800 |
L5, мм (расстояние от анкерных болтов до оси опоры ФГГ) | 0 |
L6, мм (расстояние от патрубка подвода нефти до оси ФГГ) | 780 |
L4, мм (расстояние от дренажного патрубка к оси опоры) | 1250 |
Н1, мм (расстояние от дренажного патрубка до оси ФГГ) | 530 |
Радиус вылета быстроразъемного концевого затвора, мм | 1330 |
Количество штурвалов быстроразъемного концевого затвора, шт | 1 |
Чертеж фильтра ФГГ-350

Чертеж блочного фильтра ФГГ-350

Преимущества ООО "УЗСК"
- Изготовление корпусов с антистатическим покрытием для работы с легковоспламеняющимися нефтепродуктами.
- Возможность комплектации датчиками давления с выводом данных в систему АСУ ТП.
- Разработка, производство, контроль, доставка в Железногорске и шефмонтаж под ключ от 20 рабочих дней.
Расшифровка условного обозначения

Например, фильтр грязеуловитель горизонтальный ФГГ номинальным диаметром DN 350 на номинальное давление PN 4,0 МПа, блочного исполнения, с осевым отводом нефти или нефтепродуктов, с правым расположением патрубка подвода нефти или нефтепродуктов, в сейсмостойком исполнении С по MSK — 64 [10], без теплоизоляции, вид климатического исполнения УХЛ1 по ГОСТ 15150 будет обозначаться следующим образом: ФГГ-350-4,0-Б-0-П-С-УХЛ1.
Заполните форму заказа